Verkocht:Burgemeester Elsenlaan 117, 2282 NC Rijswijk - Foto
Verkocht
+24

Burgemeester Elsenlaan 117 2282 NC Rijswijk

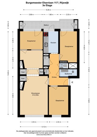
  • Appartement
  • 5 kamers
  • 4 slaapkamers
  • 1 badkamers
  • Bouwjaar 1957
  • 72 m² gebruiksoppervlakte
  • D Energielabel D

Beschrijving

***English version below***

Rustige ligging met alle voorzieningen binnen handbereik

Wonen aan de Burgemeester Elsenlaan betekent genieten van rust én gemak. Dit
keurig onderhouden appartement ligt aan een brede, groene laan in een rustige
woonwijk van Rijswijk. Dankzij de centrale ligging zijn winkelcentrum In de
Bogaard, openbaar vervoer (tram en bus) en uitvalswegen in no-time bereikbaar.

Toch overheerst hier vooral de serene sfeer, ideaal voor wie comfortabel wil wonen
met alle stadse voorzieningen vlakbij.
Hoog en vrij uitzicht vanaf de derde verdieping

Het appartement bevindt zich op de derde verdieping, wat niet alleen zorgt voor
veel privacy, maar ook voor een prachtig uitzicht over de groene omgeving van
Rijswijk. Dankzij de grote ramen is het appartement bovendien heerlijk licht. Elke
dag opnieuw geniet je hier van een ruimtelijk gevoel en een vrij zicht — een
zeldzame luxe in een stedelijke omgeving.

Keurige afwerking, instapklaar
Wat direct opvalt bij binnenkomst is de nette staat van onderhoud. Het appartement
is strak en smaakvol afgewerkt, met onder andere een moderne laminaatvloer,
frisse wandafwerking en een nette keuken, wc en badkamer. De indeling is
praktisch, met een lichte woonkamer, 3 ruime slaapkamers en voldoende
bergruimte. Hier hoef je niets meer te doen — je kunt er zó in.

Zeer gezonde VvE, lage maandlasten

Een belangrijk pluspunt: het appartement maakt deel uit van een actieve en
financieel gezonde Vereniging van Eigenaren. De maandelijkse bijdrage bedraagt
slechts €75,-, waarmee onder andere het onderhoud van het gebouw en de
opstalverzekering worden geregeld. Een fijne zekerheid voor nu én voor de
toekomst.

Samengevat: comfortabel wonen op hoogte !

· Gelegen op de rustige Burgemeester Elsenlaan
. Gelegen op eigen grond
· Derde verdieping met prachtig uitzicht
· Instapklaar dankzij keurige afwerking
. Energielabel C
. Grote berging aanwezig in de onderbouw
Niet bewoners clausule zal worden opgenomen in de koopakte
· Gezonde VvE met lage bijdrage (€75,- p.m.)
· Nabij winkels, OV en uitvalswegen

Ben je op zoek naar een comfortabel ruime appartement waar je zó in kunt? Dan is
Burgemeester Elsenlaan 117 absoluut een bezichtiging waard.

Neem contact op
voor een afspraak — wij laten het je graag zien!

------------------------------------------------------------------------------------------------------------------------------

Quiet location with all amenities within reach

Living on Burgemeester Elsenlaan means enjoying peace and convenience. This
well-maintained apartment is located on a wide, green avenue in a quiet
residential area of ​​Rijswijk. Thanks to its central location, the In de
Bogaard shopping centre, public transport (tram and bus) and arterial roads can be reached in no time.

Yet the serene atmosphere prevails here, ideal for those who want to live
comfortably with all city amenities nearby.
High and unobstructed view from the third floor

The apartment is located on the third floor, which not only
provides a lot of privacy, but also a beautiful view of the green surroundings of
Rijswijk. Thanks to the large windows, the apartment is also wonderfully light. Every
day you can enjoy a spacious feeling and an unobstructed view here — a
rare luxury in an urban environment.

Neat finish, ready to move in
What immediately stands out upon entering is the neat state of maintenance. The apartment
is sleek and tastefully finished, with a modern laminate floor,
fresh wall finish and a neat kitchen, toilet and bathroom. The layout is
practical, with a bright living room, 3 spacious bedrooms and sufficient
storage space. You don't have to do anything here - you can move in straight away.

Very healthy VvE, low monthly costs

A major plus: the apartment is part of an active and
financially healthy Owners' Association. The monthly contribution is
only €75,-, which, among other things, arranges the maintenance of the building and
the building insurance. A nice certainty for now and for the
future.

In summary: comfortable living at height!

· Located on the quiet Burgemeester Elsenlaan
. Located on private land
· Third floor with beautiful view
· Ready to move in thanks to neat finish
. Energy label C
. Large storage room available in the basement
Non-resident clause will be included in the purchase agreement
Healthy VvE with low contribution (€75,- p.m.)
Close to shops, public transport and highways

Are you looking for a comfortable spacious apartment that you can move into right away? Then
Burgemeester Elsenlaan 117 is definitely worth a visit.

Contact
for an appointment — we will be happy to show you!

Kaart

Kenmerken

Overdracht

Referentienummer
00996
Vraagprijs
€ 289.000,- k.k.
Servicekosten
€ 75,-
Status
Verkocht
Aanvaarding
In overleg
Aangeboden sinds
Woensdag 23 april 2025
Laatste wijziging
Donderdag 31 juli 2025

Bouw

Type object
Appartement, portiekflat
Woonlaag
3e woonlaag
Soort bouw
Bestaande bouw
Bouwperiode
1957
Isolatievormen
Dubbel glas

Oppervlaktes en inhoud

Woonoppervlakte
72 m²
Inhoud
230 m³

Indeling

Aantal bouwlagen
1
Aantal kamers
5 (waarvan 4 slaapkamers)
Aantal badkamers
1 (en 1 apart toilet)

Energieverbruik

Energielabel
D

Uitrusting

Warm water
CV-ketel
Verwarmingssysteem
Centrale verwarming

Vereniging van Eigenaren

Jaarlijkse vergadering
Ja
Reservefonds
Ja
Meer jaren onderhoudsplan
Ja
Onderhoudsverwachting
Ja
Opstal verzekering
Ja

Kadastrale gegevens

Kadastrale aanduiding
Rijswijk D 6734
Omvang
Appartementsrecht of complex
Eigendomsituatie
Eigen grond

Media

Video

Plattegronden