Onder bod:Koekoeklaan 1, 2261 EX Leidschendam - Foto
Onder bod
+27

Koekoeklaan 1 2261 EX Leidschendam € 825.000,- k.k.

  • Woonhuis
  • 6 kamers
  • 5 slaapkamers
  • 1 badkamers
  • Bouwjaar 1967
  • 270 m² perceeloppervlakte
  • 159 m² gebruiksoppervlakte
  • C Energielabel C

Beschrijving

Koekoeklaan 1, Leidschendam

Ruimte, licht en comfort komen samen in deze ruime gezinswoning aan de Koekoeklaan. Met vijf slaapkamers, een zonnige tuin en een inpandige garage is dit de ideale plek voor gezinnen die dichtbij alle voorzieningen willen wonen.

Dit maakt de woning bijzonder
• Royale 2 onder 1 kap woning (bouwjaar 1967) met 159 m² woonoppervlak
• Perceel van 270 m² met zonnige voor- en achtertuin
• Vijf slaapkamers verdeeld over twee verdiepingen
• Luxe badkamer met ligbad, inloopdouche, dubbele wastafel en separaat toilet
• Inpandige garage, eigen oprit en praktische bijkeuken
• Energielabel C, volledig dubbel glas, 10-groepen meterkast
• Twee dakkapellen die zorgen voor extra licht en ruimte

Indeling
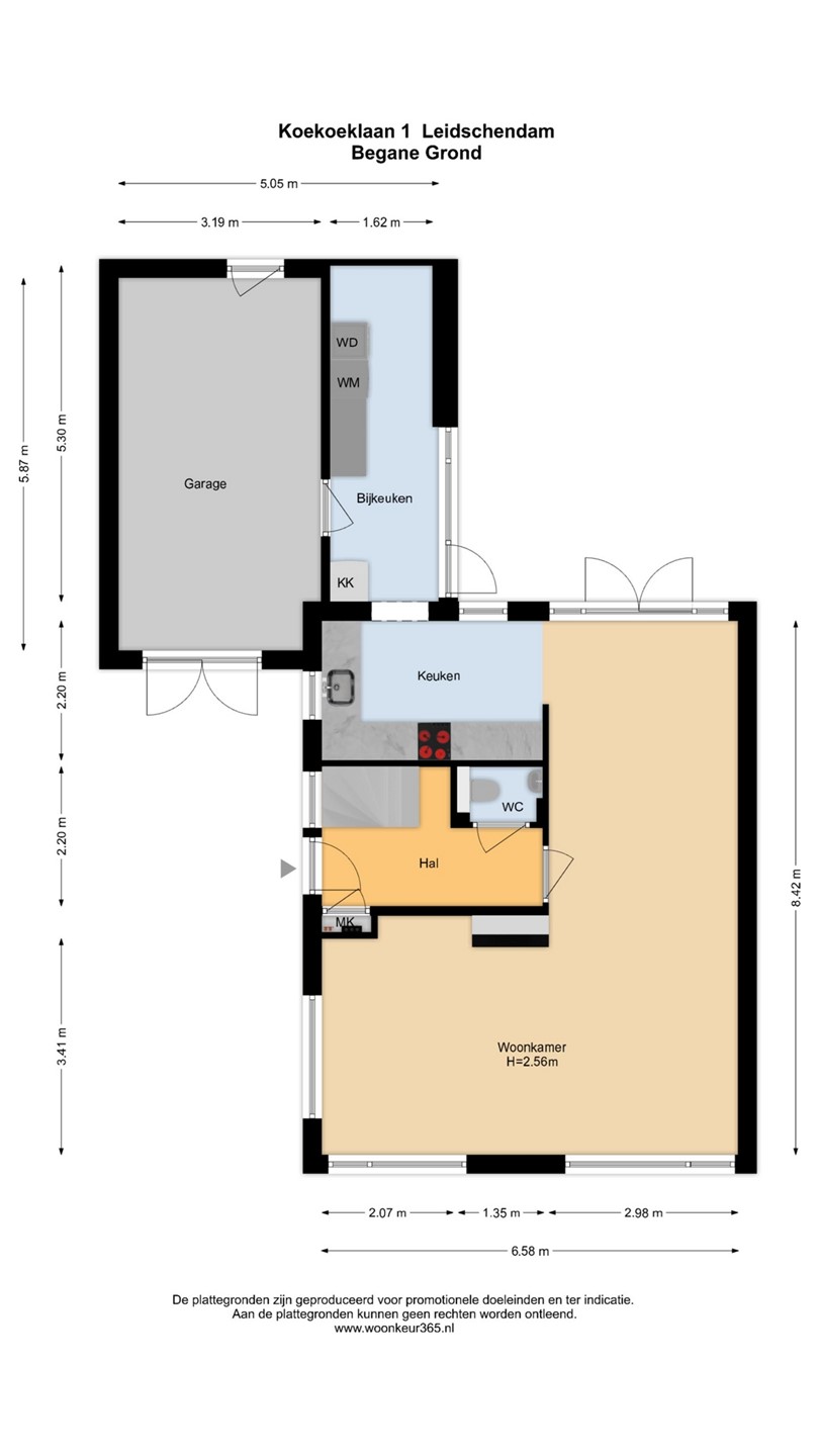
Begane grond
Entree met hal, toilet en trapopgang. Ruime en lichte woonkamer met openslaande deuren naar de achtertuin. Moderne keuken voorzien van inbouwapparatuur, aansluitend een bijkeuken met opstelplaats voor wasapparatuur en extra bergruimte. Vanuit de bijkeuken toegang tot de inpandige garage.
Eerste verdieping
Overloop, drie ruime slaapkamers. Luxe badkamer met ligbad, inloopdouche, dubbele wastafel en designradiator. Separaat toilet op de overloop.

Tweede verdieping
Overloop met bergruimte en cv-opstelling. Twee slaapkamers, beide voorzien van een dakkapel waardoor de verdieping volop licht en ruimte biedt.
Buiten
De woning beschikt over een zonnige achtertuin op het zuidoosten en een verzorgde voortuin. Dankzij de breedte en diepte van het perceel is er altijd een fijne plek om te ontspannen, te spelen of te tuinieren.

Omgeving
De Koekoeklaan ligt in een rustige en kindvriendelijke wijk in Leidschendam. Scholen, sportfaciliteiten, openbaar vervoer (tram en RandstadRail) en uitvalswegen zijn nabij. Ook The Mall of the Netherlands en het historische Damcentrum liggen op loop- en fietsafstand, waardoor je alle voorzieningen binnen handbereik hebt.

Kenmerken
• Woonoppervlak: 159 m²
• Perceel: 270 m²
• Energielabel: C
• Aantal slaapkamers: 5

Kortom: een ideaal gezinshuis met volop ruimte, moderne voorzieningen en een heerlijke tuin op een centrale locatie in Leidschendam.

*** english text ***

Koekoeklaan 1, Leidschendam
Space, light and comfort come together in this spacious family home on Koekoeklaan. With five bedrooms, a sunny garden and an integrated garage, this is the ideal place for families who want to live close to all amenities.
Highlights
• Spacious corner house (built in 2005) with 159 m² of living space
• Generous plot of 270 m² with both front and back garden
• Five large bedrooms across two upper floors
• Modern bathroom with bathtub, walk-in shower, double sink and separate toilet
• Integrated garage, private driveway and practical utility room
• Energy label C, fully double glazed, modern 10-group fuse box, Vaillant boiler (2005)
• Two dormer windows providing extra space and natural light
Layout
Ground floor
Entrance with hall, toilet and staircase. Bright and spacious living room with French doors opening onto the garden. Modern kitchen with built-in appliances, adjoining utility room with laundry setup and extra storage. From here, direct access to the integrated garage.
First floor
Landing with three generously sized bedrooms. Luxury bathroom with bathtub, walk-in shower, double sink and designer radiator. Separate toilet on the landing.
Second floor
Landing with storage space and central heating unit. Two bedrooms, both with dormer windows adding light and space to the floor.
Outdoors
The house offers a sunny southeast-facing back garden and a well-kept front garden. Thanks to the size and width of the plot, there is always a pleasant spot to relax, play or enjoy the outdoors.
Location
Koekoeklaan is a quiet and family-friendly street in Leidschendam. Schools, sports facilities, public transport (tram and RandstadRail) and major roads are close by. The Mall of the Netherlands and the historic Damcentrum are within walking and cycling distance, ensuring all amenities are right at your doorstep.
Key facts
• Living area: 159 m²
• Plot size: 270 m²
• Energy label: C
• Number of bedrooms: 5
In short: an ideal family home with plenty of space, modern features and a sunny garden, all in a prime Leidschendam location.

Kaart

Kenmerken

Overdracht

Referentienummer
01106
Vraagprijs
€ 825.000,- k.k.
Inrichting
Niet gestoffeerd
Inrichting
Niet gemeubileerd
Status
Onder bod
Aanvaarding
In overleg
Aangeboden sinds
Woensdag 8 oktober 2025
Laatste wijziging
Zaterdag 1 november 2025

Bouw

Type object
Woonhuis, eengezinswoning, twee onder een kap woning
Soort bouw
Bestaande bouw
Bouwperiode
1967
Dakbedekking
Dakpannen
Type dak
Zadeldak
Isolatievormen
Dubbel glas
Spouwmuren

Oppervlaktes en inhoud

Perceeloppervlakte
270 m²
Woonoppervlakte
159,3 m²
Inhoud
629 m³
Oppervlakte overige inpandige ruimten
18,5 m²

Indeling

Aantal bouwlagen
3
Aantal kamers
6 (waarvan 5 slaapkamers)
Aantal badkamers
1 (en 2 aparte toiletten)

Tuin

Type
Achtertuin
Hoofdtuin
Ja
Oriëntering
Zuid-west
Staat
Normaal
Tuin 2 - Type
Achtertuin
Tuin 2 - Oriëntering
Noord west
Tuin 2 - Staat
Normaal

Energieverbruik

Energielabel
C

CV ketel

CV ketel
Vaillant
Warmtebron
Gas
Bouwjaar
2005
Eigendom
Eigendom

Uitrusting

Aantal parkeerplaatsen
2
Warm water
CV-ketel
Verwarmingssysteem
Centrale verwarming
Badkamervoorzieningen
Inloopdouche
Ligbad
Wastafel
Wastafelmeubel
Parkeergelegenheid
Aangebouwde stenen garage
Heeft kabel-tv
Ja
Tuin aanwezig
Ja
Heeft een garage
Ja
Beschikt over een internetverbinding
Ja

Kadastrale gegevens

Kadastrale aanduiding
Leidschendam-Voorburg 1 1
Perceeloppervlakte
270 m²
Omvang
Geheel perceel
Eigendomsituatie
Eigen grond