Nieuw in verkoop:Appelgaarde 279, 2272 TH Voorburg - Foto
Nieuw in verkoop
+32

Appelgaarde 279 2272 TH Voorburg € 645.000,- k.k.

  • Woonhuis
  • 4 kamers
  • 3 slaapkamers
  • 1 badkamers
  • Bouwjaar 1974
  • 165 m² perceeloppervlakte
  • 135 m² gebruiksoppervlakte
  • B Energielabel B

Beschrijving

JOUW DROOMHUIS WACHT OP JE!
Ben jij klaar voor een plek waar je écht kunt landen? Dit drielaags benedenhuis (ca. 135 m² woonoppervlak, perceel 165 m²) combineert licht, ruimte en comfort met een groene, kindvriendelijke omgeving. Perfect voor jonge gezinnen die alles bij de hand willen hebben: scholen, OV, speelvelden, maar ook winkels en de stad. Hier vind je rust én gemak in één.
________________________________________
HOOGTEPUNTEN VAN DE WONING
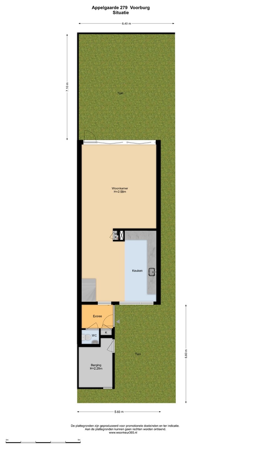
• Ruime opzet: Een riante eengezinswoning met een totale woonoppervlakte van ca. 135 m², inclusief zowel een voortuin als een zonnige achtertuin (zuidwest).
• Modern wonen: Strakke, lichte keuken met diverse inbouwapparatuur, veel bergruimte en een gezellige eethoek met vide – altijd een wow-factor.
• Licht en luchtig: Royale woonkamer met laminaatvloer en een enorme glazen schuifpui die helemaal open kan. Binnen en buiten lopen hier moeiteloos in elkaar over.
• Tuinplezier: De achtertuin is groen, zonnig en intiem. Hier kun je loungen, barbecueën en de kinderen zien spelen.
• Comfortabel slapen: Drie ruime slaapkamers, verdeeld over de verdiepingen, plus een praktische badkamer met bad én inloopdouche.
• Parkeren zonder stress: Gratis parkeren in de buurt – altijd plek voor je deur.
________________________________________
EEN THUIS WAAR JE HART SNELLER VAN GAAT KLOPPEN
Vanaf het moment dat je binnenstapt, voel je het meteen: dit huis klopt. De ruime keuken is de ideale plek voor drukke ontbijtsessies met de kids of lange borrels met vrienden. Dankzij de vide boven de keuken valt het daglicht prachtig naar binnen, wat zorgt voor een luchtige en open sfeer.
Loop je door naar de woonkamer, dan word je omringd door licht en groen. De schuifpui vouwt helemaal open, zodat de tuin een verlengstuk wordt van je leefruimte. In de zomer zit je hier met alle deuren open en hoor je alleen de vogels, terwijl de kinderen zorgeloos spelen in de wijk.
Op de eerste verdieping wacht je eigen ‘relax floor’: een royale slaapkamer met uitzicht over de tuin en een moderne badkamer. Douchen onder de regendouche of ontspannen in bad – het voelt als een mini-spa. De overloop doet nu dienst als studeerplek met uitzicht over de keuken: ideaal voor thuiswerken of een rustig hoekje voor de kids.
De tweede verdieping biedt nog eens twee slaapkamers, perfect voor kinderen, logees of zelfs een hobbyruimte. Aan de voorzijde is de technische ruimte met plek voor wasmachine, droger en de Vaillant cv-ketel (2021). Alles netjes en praktisch weggewerkt.
________________________________________
DUURZAAM EN KINDVRIENDELIJK WONEN
• Energielabel B – dus lagere energierekeningen.
• 9 zonnepanelen – check, je wekelijkse zonnestroom is geregeld.
• Kindvriendelijke wijk – volop speelplaatsen en veilige straten waar je kids vrij kunnen ravotten.
• Groene omgeving – omringd door bomen, struiken en wandelroutes, terwijl je toch overal dichtbij zit.
• Altijd connected – metro, tram en trein liggen letterlijk om de hoek, ideaal voor werk en stadstrips.
• Kunststof kozijnen 1e en 2e verdieping vervangen in 2024

________________________________________
ZIE JE JEZELF HIER AL WONEN?
Stel je voor: zomerse avonden in de tuin met de barbecue aan, spelende kinderen in de wijk, en een huis dat voelt als een warme jas. Dit is meer dan een huis – dit is de plek waar herinneringen ontstaan.
Laat deze kans niet liggen. Maak vandaag nog een afspraak voor een bezichtiging en kom ervaren hoe dit droomhuis voelt. Voor je het weet, stap je zelf over de drempel van jouw nieuwe thuis!
________________________________________
• Energielabel B
• 9 zonnepanelen
• Cv-ketel Vaillant 2021
• Vraagprijs € 645.000 k.k.
• Oplevering in overleg

*** english text ***

YOUR DREAM HOME AWAITS!
Are you ready for a place where you can truly feel at home? This three-story ground-floor apartment (approx. 135 m² living space, 165 m² plot) combines light, space, and comfort with a green, child-friendly environment. Perfect for young families who want everything close at hand: schools, public transport, playgrounds, as well as shops and the city. Here you'll find peace and convenience all in one.
________________________________________
HOME HIGHLIGHTS
• Spacious layout: A spacious family home with a total living space of approximately 135 m², including both a front garden and a sunny back garden (southwest-facing).
• Modern living: Sleek, bright kitchen with various built-in appliances, ample storage space, and a cozy dining area with a mezzanine – always a wow factor.
• Light and airy: Spacious living room with laminate flooring and enormous sliding glass doors that can be fully opened. Indoors and outdoors flow seamlessly together here. • Garden fun: The backyard is green, sunny, and intimate. Here you can lounge, barbecue, and watch the kids play.
• Comfortable sleeping: Three spacious bedrooms, spread across the floors, plus a practical bathroom with both a bathtub and a walk-in shower.
• Stress-free parking: Free parking nearby – always a spot right outside.
________________________________________
A HOME THAT MAKES YOUR HEART BEAT FASTER
From the moment you step inside, you'll immediately feel it: this house is perfect. The spacious kitchen is the ideal place for busy breakfast sessions with the kids or long drinks with friends. Thanks to the mezzanine above the kitchen, natural light flows beautifully, creating a light and open atmosphere.
As you walk through to the living room, you're surrounded by light and greenery. The sliding doors fold open completely, making the garden an extension of your living space. In the summer, you can sit here with all the doors open and hear only the birds while the children play carefree in the neighborhood. On the first floor, your own "relax floor" awaits: a spacious bedroom with a garden view and a modern bathroom. Shower under the rain shower or unwind in the bath—it feels like a mini spa. The landing currently serves as a study area with a view of the kitchen: ideal for working from home or a quiet corner for the kids.
The second floor offers two more bedrooms, perfect for children, guests, or even a hobby room. At the front is the utility room with space for the washing machine, dryer, and Vaillant central heating boiler (2021). Everything is neatly and practically concealed.
________________________________________
SUSTAINABLE AND CHILD-FRIENDLY LIVING
• Energy label B—meaning lower energy bills.
• 9 solar panels—check, your weekly solar power is taken care of.
• Child-friendly neighborhood—plenty of playgrounds and safe streets where your kids can run around freely.
• Green surroundings—surrounded by trees, shrubs, and walking paths, while still being close to everything. • Always connected – the metro, tram, and train are literally around the corner, ideal for work and city breaks.
________________________________________
CAN YOU VISIT YOURSELF LIVING HERE?
Imagine: summer evenings in the garden with the barbecue going, children playing in the neighborhood, and a house that feels like a warm coat. This is more than just a house – this is where memories are made.
Don't miss this opportunity. Schedule a viewing today and experience what this dream home feels like. Before you know it, you'll be walking through the doors of your new home!
________________________________________
• Energy label B
• 9 solar panels
• Vaillant 2021 central heating boiler
• Asking price €645,000 (costs for buyer)
• Delivery in consultation

Kaart

Kenmerken

Overdracht

Referentienummer
01131
Vraagprijs
€ 645.000,- k.k.
Inrichting
Niet gestoffeerd
Inrichting
Niet gemeubileerd
Status
Nieuw in verkoop
Aanvaarding
In overleg
Aangeboden sinds
Woensdag 7 januari 2026

Bouw

Type object
Woonhuis, eengezinswoning, hoekwoning
Soort bouw
Bestaande bouw
Bouwperiode
1974
Dakbedekking
Dakpannen
Type dak
Zadeldak
Isolatievormen
Dubbel glas
Muurisolatie

Oppervlaktes en inhoud

Perceeloppervlakte
165 m²
Woonoppervlakte
135,2 m²
Inhoud
500 m³
Oppervlakte overige inpandige ruimten
6,5 m²

Indeling

Aantal bouwlagen
3
Aantal kamers
4 (waarvan 3 slaapkamers)
Aantal badkamers
1 (en 1 apart toilet)

Tuin

Type
Voortuin
Oriëntering
Noord-oost
Staat
Normaal
Tuin 2 - Type
Achtertuin
Tuin 2 - Hoofdtuin
Ja
Tuin 2 - Oriëntering
Zuid-west
Tuin 2 - Staat
Normaal
Tuin 3 - Type
Zijtuin

Energieverbruik

Energielabel
B

CV ketel

CV ketel
Vaillant
Warmtebron
Gas
Bouwjaar
2021
Eigendom
Eigendom

Uitrusting

Warm water
CV-ketel
Verwarmingssysteem
Centrale verwarming
Keukenvoorzieningen
Inbouwapparatuur
Heeft kabel-tv
Ja
Tuin aanwezig
Ja
Telefoonaansluiting aanwezig
Ja
Beschikt over een internetverbinding
Ja
Heeft zonnepanelen
Ja

Kadastrale gegevens

Kadastrale aanduiding
Leidschendam-Voorburg D 5546
Perceeloppervlakte
165 m²
Omvang
Geheel perceel
Eigendomsituatie
Eigen grond